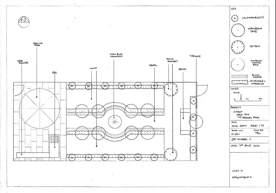
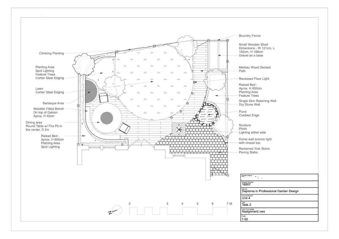
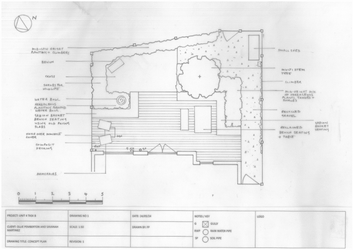
Concept Plans

What is UK Government Funding?

UK students pay approximately 50% of the full course fee – the balance is funded by the UK Government’s Adult education budget (AEB).

The National Design Academy is the only design school to be able to offer this funding as our Diplomas are all fully accredited by AIM Qualifications.